솔리드웍스 곡면 기능을 활용한 모델링 따라 하기
제품디자인에 필수적인 곡면과 솔리드를 이용해서 모델링하는 강좌

이번 강의는 지금까지와는 조금 다르게, 솔리드웍스 곡면을 이용해서 모델링하는 방법을 간단하게 소개하고, 아래 제공하는 도면을 이용해서 곡면을 이용해서 디자인한 형상을 모델링하는 과정을 알아보자.
3D모델링에는 몇몇 가지 방법이 있는데, 보통 솔리드웍스나 인벤터, 카티아 같은 3D캐드에서는 대다수가 솔리드 기반으로 모델링이 이루어지며, 라이노와 같은 3D캐드가 곡면 기반으로 모델링 된다고 볼 수 있다. 하지만, 꼭 솔리드만 사용해야 된다 아니면 꼭 곡면을 사용해야 된다는 고정된 규칙은 없다.
거의 모든 3D캐드에서 솔리드와 곡면 모델링 방법을 사용할 수 있고, 기능도 대부분 비슷하게 지원하고 있다. 해당 툴로 무엇을 설계하고 제작할 것인가에 대한 목적의 차이에서 비롯된 편협적인 생각이라 볼 수 있을 것이다.

보통 3D캐드에서는 솔리드와 서피스 모두 사용하고 있으며, 이 두 개의 방법을 같이 사용하는 것을 하이브리드 모델링이라고 칭하고 있다.
3D캐드에서 곡면으로 시작했더라도, 최종 결과물은 무조건 솔리드 객체로 완성되어야 하고, 곡면을 곡면으로 끝나는 경우는 거의 없다. 특히, CAM, CNC 가공 데이터로 내려야 하거나, 3D프린팅에서도 결과물이 솔리드가 아닌 곡면으로 있는 경우, 제대로 출력이 이루어지지 않는다.
이번에 따라 하기 강의에 사용되는 플라스틱 바구니도, 첫 시작은 솔리드에서 시작해서 곡면으로 형상을 만들고, 최종적으로 다시 솔리드로 최종 형상을 만들어 가는 방법이다.
PDF도면 다운로드
상기 바구니 도면은 직접 디자인하고, 생성한 도면으로, 치수가 누락되나 불합리한 부분이 있을 수 있으니, 문제가 있는 부분은 댓글로 알려주면 수정하겠습니다.
솔리드웍스 곡면을 이용한 바구니 모델링은 영상 강의와 글 강의가 같이 제공되고 있어, 영상과 글을 같이 활용해서 공부할 수 있었으면 좋겠다.
※ 요즘 세대의 큰 문제가 귀도 듣고, 그냥 넘어가버리는 경우가 많기 때문에 글도 같이 보면서 따라 해 보면 쉽게, 손에 익힐 수 있을 것이다.
곡면을 이용한 플라스틱 바구니 모델링 따라 하기
곡면을 사용한다고 해도, 크게 어려운 작업은 거의 없다.
대부분 일반적인 기능이 대부분이고, 곡면에서 몇몇 가지가 추가적으로 사용되는 것이 대부분이다.


① 윗면 기준으로 새 스케치를 시작하고, 중심 사각형을 원점 기준으로 스케치를 작성하고 치수 구속한다.
② 스케치된 사각형에 스케치 필렛을 이용해서 도면과 같이 모깎기를 적용한다.
※ 피처 필렛과 스케치 필렛은 일반적인 돌출에서는 차이가 없지만, 구배가 있는 경우에는 스케치 필렛과의 차이가 확실하게 나타난다.
③ 돌출 보스/베이스를 이용해서 도면과 같은 돌출 높이를 입력할 때, 바구니 두께만큼 줄여서 값을 입력한다.
④ 구배를 활성화시키고, 도면과 같이 구배 각도를 지정한 후, 바깥으로 구배를 체크하고, 기준 형태를 완성한다.
바구니 윗부분 손잡이 형태 곡면 작성


① 우측면을 기준으로 새 스케치를 시작하고, 도면과 같이 바구니 윗부분에 해당하는 스케치를 작성한 후, 바구니 손잡이를 만들기 위해서 필요한 스케치의 여유값은 대략적으로 30mm로 구속하고, 마무리한다.
② 곡면 탭에서 돌출 곡면을 실행하고, 돌출 방향을 중간평면으로 지정한 후, 돌출 값은 400mm 정도로 대략적으로 생성한다.
솔리드 객체를 곡면으로 만들기 및 곡면 잘라내기


① 곡면 탭에서 면 삭제를 실행하고, 처음 돌출한 바구니 형상의 윗면을 선택하고, 면을 삭제할 때 옵션은 삭제로 선택한 후 제거한다.
② 곡면 탭에서 곡면 자르기를 이용하여, 바구니 형태를 만들기 위해서, 불필요한 면을 제거할 때, 자르기 형식은 상호 자르기로 선택하고, 자를 기준면을 둘 다 선택한 후, 불필요한 면을 선택해서 잘라내면 된다.
※ 곡면 잘라내기에서 상호 잘라내기 옵션을 사용하면, 면 자르기 된 곡면은 전부 하나의 곡면 객체로 자동으로 붙여진다.
스케치로 곡면 잘라내기



① 윗면 기준으로 새 스케치를 시작하고, 요소 변환으로 곡면 잘라내기를 통해 만들어진 가장자리 선분을 모두 선택하여, 참조 스케치 선을 작성한 후, 모두 보조선으로 변경한다.
② 보조선으로 변경된 참조 스케치 선을, 오소 오프셋을 이용해서 도면과 같은 값 15mm로, 스케치 선분을 간격 띄우기 한다.
③ 곡면 탭, 곡면 잘라내기에서 자르기 유형을 표준으로 변경하고, 잘라내기 도구를 스케치 선으로 선택한 후, 불필요한 곡면을 선택해서, 바구니 손잡이 부분을 작성합니다.
※ 곡면 잘라내기에서 선택 제거로 작업해야 한다.
롤드 곡면으로 손잡이 만들기


① 손잡이 턱을 생성하기 위해서, 우측면을 선택하고 새 스케치를 시작한 후, 선으로 곡면 끝점을 기준으로 대충 선을 작성하고, 치수 구속으로 구배 각도를 지정한다.
② 곡면 탭에서 롤드 곡면을 실행하고, 유형에서 스윕으로 선택한 후, 도면과 같은 거리 값을 입력하고 앞에서 스케치한 각도가 있는 선을 선택한다.
③ 롤드 곡면이 생성될 객체 모서리를 전부 선택하여, 기본적인 플라스틱 바구니의 형태를 완성한다.
면 붙이기와 모서리 필렛


① 롤드 곡면으로 생성된 객체와 곡면 잘라내기 한 바구니를 하나의 곡면으로 만들기 위해서, 곡면 붙이기를 실행한 후, 모든 곡면을 선택해서 하나의 곡면으로 붙인다.
② 하나의 곡면으로 붙었다면, 곡면 필렛을 이용하여, 도면과 같이 필요한 모서리에 모깎기를 지정하는데, 다중모서리 필렛 기능을 이용해서 필요한 모서리에 값을 부여하면 된다.
곡면 객체를 솔리드 객체로 변환하기

① 두꺼운 피처 실행하고, 두께를 가진 솔리드를 만들 곡면 객체를 선택한다.
② 생성 방향은 바깥으로 지정하고, 도면과 같이 바구니 두께를 입력한 후, 완성한다.
채우기 패턴을 이용한 다량 구멍 생성



① 바구니 아랫면을 선택하고, 새 스케치를 시작한 후, 도면과 같이 원점 기준으로 원을 스케치하고 치수 구속한다.
② 돌출 컷을 실행하고, 금방 스케치한 원을 관통으로 구멍을 생성한다.
③ 선형 패턴 하위 탭에서 채우기 패턴을 실행한 후, 경계 채우기에서 구멍이 생성될 바구니 아래면을 선택한다.
④ 패턴 시킬, 돌출 컷 피처를 선택하고, 패턴 거리와 각도를 입력하고, 완성한다.
바구니 앞 뒤쪽 장공 구멍 만들기



① 정면을 선택하고, 새 스케치를 시작하고, 도면과 같이 장공(홈, 슬롯)으로 스케치 후, 치수 및 형상 구속을 부여한다.
② 돌출 컷, 관통으로 앞쪽으로 구멍을 작성한다.
③ 선형 배열 복사를 실행해서, 방향 1과 방향 2를 같은 선분으로 선택하고, 거리와 패턴 수량을 지정한 후, 방향 1 또는 2의 진행 방향을 변경한다.
④ 패턴 할 돌출 컷 피처를 선택하고, 방향 2 옵션에 있는 패턴 씨드만을 체크하고, 완성한다.
※ 뒷면도 앞면과 동일한 작업이며, 스케치의 수량만 더 늘어난다.
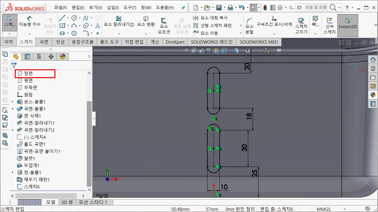
바구니 측면 장공 만들기


① 우측면을 선택하고, 새 스케치를 시작하며, 도면과 같이 장공형태를 모두 스케치한다.
② 돌출 컷을 실행 후, 관통 양쪽으로 양방향 관통 피처를 생성하여, 마무리한다.
장공 모깎기 적용과 완성

① 도면과 같이 생성된 장공에 한쪽만 모깎기를 적용하는데, 반지름을 입력한 후, 장공이 있는 면을 선택해서, 필렛을 적용한다.

② 최종 완성된 욕실용 플라스틱 바구니
여기까지 욕실 플라스틱 바구니의 형태를 모델링하였다.
작업의 공정에서 눈에 띄는 부분은 곡면을 이용한 작업 형태와 채우기 패턴 기능 정도가 아닐까 생각한다.
보통 곡면은 산업디자인, 제품디자인에 해당하는 사출 금형, 다이케스팅 형상을 모델링할 때 굉장히 많이 사용하는 기능으로, 솔리드와 함께 많이 사용되는 기능임으로, 시간이 되면 틈틈이 연습해 두어야 하는 부분이며, 관련 전공 또는 직무를 수행하고자 하시는 분들도 열심히 공부해 둘 필요가 있다.
