솔리드웍스, 인벤터, 카티아, UG-NX 등 3D 모델링 연습 도면 제공
자격시험이나 실무능력 향상을 위한 캐드 도면

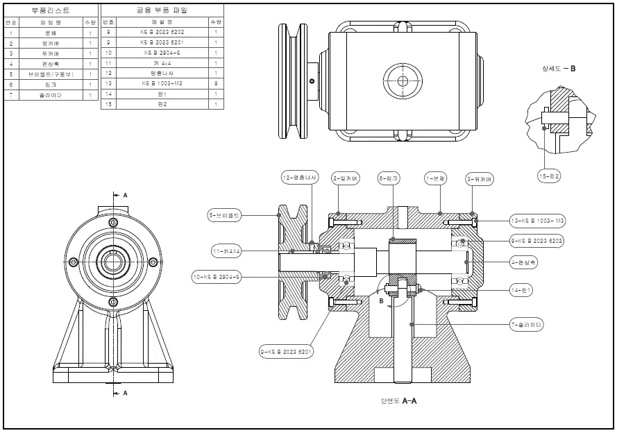
제공하는 도면을 참고하여, 3D 캐드 소프트웨어 (인벤터, 솔리드웍스, 카티아, UG-nx 등)을 이용하여 부품을 모델링하고, 제공하는 규격 부품과 제공 부품을 이용하여 조립품까지 작성할 수 있도록 공부하자.
참고로, 오토캐드로 2차원 도면 작성하는 연습이나, 전산응용기계설계 기능사 또는 기계설계 산업기사, 기사와 같은 자격시험 연습용으로도 충분히 활용할 수 있다.
PDF도면 및 부품파일 다운로드
편심동력변환장치 도면 자료.pdf
0.49MB
규격 및 제공 부품(조립품용).zip
1.03MB
부품 도면과 조립품 도면이 같이 있기 때문에 도면을 통해 모델링 후, 조립품 생성할 때는 제공하는 규격 및 제공 부품.zip 파일을 다운로드하여 사용하면 된다.
STEP파일로 되어 있기 때문에 사용하는 3D캐드의 기능을 활용해서 변환해서 사용하면 된다.
728x90
반응형