- 캐드 치수기입에 따른, 치수 스타일 변경 방법이지만, 세부적이고 디테일한 도면 치수의 모양을 변경하는 중요한 내용이다.
- 지스타캐드, 오토캐드, ZW캐드, 캐디안 등 2차원 캐드 프로그램에서는 기본 공통적으로 사용되는 부분이기 때문에, 소프트웨어를 구분할 필요는 없다.

2022년도 마지막으로 진행하는 글 강좌인 것 같다.
이번 포스팅은 지난 21년 10월에 포스팅한 "치수 스타일 초기 옵션 설정 변경"에 대한 연장선이라고 볼 수 있는 내용으로, 초기에 치수 기입 후, 중간중간 변경되는 치수 스타일을 보완하기 위한 옵션이라고 볼 수 있다.
[AutoCAD]오토캐드 기초 강좌 - 치수 스타일 옵션 변경 방법 (초기 설정 방법)
천만년만에 오토캐드에 대한 강좌를 한번 해본다. 오토캐드. 즉, 2D 캐드에서 기능적인 부분에서 가장 많은 명령과 옵션이 존재하는 것이 바로 치수 관련 기능이 아닐까 싶다. 이번에 참 오랜만
esajin.kr
※ 2D캐드를 이제 막 입문하신 분이나, 어깨너머로 배워서 치수 스타일에 대해서 제대로 이해하지 못하는 분들께서는 위 링크를 통해서 기본적인 치수 스타일을 수정하는 내용을 익히고, 본 포스팅을 활용하기를 바란다.
도면 치수를 조금 더 이쁘고, 알아보기 쉽게!!
치수 스타일 재지정의 필요성 및 적용 방법
치수 스타일 재지정 옵션은 쉽게 말해서, 도면에 기입된 치수의 모양을 조금 더 이쁘고(?), 가독성을 좋게 하기 위한 치수 기입 작업의 일부분이다.
이 재지정 기능을 사용할 것인지 말 것인지는 솔직히, 작업하는 당사자의 도면 작성 스타일이나, 소속된 회사 또는 팀에서 지정된 규칙에 의해서 결정되기 때문에 무조건적으로 알아야 하는 부분은 아니지만, 재지정이 꼭 필요하다고 생각하면, 이번 포스팅내용을 잘 이해할 수 있도록 노력하면 좋을 것 같다.
이미, 적용된 치수의 스타일을 변경하는 방법은 크게 세 가지가 있다.
- 첫 번째는 오늘 설명할 치수 스타일 관리자(`dimstyle`, 단축키 : `D`)를 통한 치수 재지정 방법
- 두 번째는 치수 변수를 명령창에 직접 입력해서 변경하는 방법
- 세 번째는 기입된 치수를 선택하고 특성창(`properties`, `ddmodify` (단축키 : `MO`, `Ctrl+1`)을 이용해서 치수 스타일을 변경하는 방법이 있지만, 치수 변수를 직접 입력해서 설정하는 방법은 그냥 넘어간다.
특성창을 이용하는 방법

특성창을 이용한 치수 재지정 방법은 기입된 치수를 선택한 후, 특성창에서 변경하고자 하는 치수 옵션을 설정해서 변경하는 방법이지만, 간단하게 두어 개씩 변경할 사항이면 편리하지만, 많은 양을 다뤄야 하는 경우에는 많은 불편함이 있다.
치수 스타일 관리자를 통한 치수 재지정 방법

이번 강좌의 핵심이 되는 부분으로, 치수 기입 전에 무조건 사용해야 하는 치수 스타일 관리자를 통해서 재지정 치수 스타일을 변경할 수 있다.
명령창에서 `dimstyle`나 단축키 `D`를 입력하면 나타나며, 마우스 클릭질만 할 줄 아시는 분들은 상단 주석 탭 -> 치수 영역에서 하위 탭을 클릭하면 치수 스타일 관리자가 실행된다.^^
치수 객체 재지정 방법에 대한 차이점
특성창을 이용하는 경우에 이미 기입된 치수 객체를 선택해서 변경하거나, 치수 기입 도중에 선택적으로 변경할 수 있지만, 변경된 값이 다른 치수 객체에는 영향을 주지 않고, 오직 선택된 치수 객체에만 적용된다.
치수 스타일 관리자를 통해서 치수 스타일을 변경하는 스타일 변경 후, 필요한 치수 객체를 선택하여 일괄적으로 재지정할 수 있고, 재지정 이후, 도면에 치수를 기입하면 재지정된 스타일이 치수 객체에 적용된다.
그리고, 치수 변수(치수 시스템 변수, `dimasz, dimtxt, dimtvp, dimtofl, dimtoh, dimthi, dimfit, dimaso, dimexe, dimexo, dimzin, dimdec, dimcen` 등등등 정말 많음)를 명령창에 직접 입력해서 치수 객체 재지정 방법은 치수 스타일 관리자와 비슷한 환경이지만, 설정에 대한 많은 명령과 값을 대부분 숙지하고 있어야 하기 때문에 요즘은 잘 추천하지 않는다.ㅋ
※ 정말 오래전부터 사용해 왔던 분들은 아직도 치수 변수사용을 선호할 것이다.^^
※ 치수 변수의 가장 큰 장점은 직관적으로 치수를 재정할 수 있어, 손가락만 잘 움직인다면 정말 빨리 작업을 진행할 수 있어, 보통 장시간 도면과 씨름하시는 분들은 특성상 사용은 정말 깝깝하고, 치수 스타일 관리자도 어느 정도 깝깝하게 느껴지기 때문에 치수 시스템 변수를 사용한다.
※ 솔직히, 오늘 설명하는 부분을 치수 시스템 변수로 알고 있다면, 훨씬 빠르고, 간편하게 수정할 수 있는 여건도 있을 것이다.^^
치수 스타일 재지정 및 치수 시스템 변수 값 변경 후, 치수 객체 적용 방법
치수 스타일 재지정과 치수 시스템 변수 변경은 솔직히 같기 때문에, 무엇을 이용하던 기존 치수 객체에 변경된 재지정 값을 적용하는 방법도 같다.
앞에서도 언급했지만, 치수 스타일 재지정은 변경 후, 도면에 치수 기입하면, 변경된 재지정 값이 적용되고, 기존 치수 객체에 변경된 스타일을 적용하는 방법은 아래 방법을 이용한다.

치수 스타일 재지정 및 치수 시스템 변수 변경 후, 상단 메뉴 주석 탭에서 치수 업데이트 아이콘을 클릭해서 변경할 기존 치수 객체를 선택하면 재지정된 치수로 스타일이 변경된다.
※ 오토캐드 2016 버전 이상부터 위와 같이 아이콘을 클릭해서 치수를 업데이트시켰지만, 이하 버전에서는 `dim`엔터, `up`엔터 해서 명령창을 통해서 직접 업데이트시킬 수 있었다.
※ 오토캐드를 제외한 ZW캐드, 지스타캐드, 캐디안은 지금도 명령창에서 `dim`엔터, `up`엔터 해서 업데이트할 수 있다.
오토캐드 치수 업데이트 단축 명령 만들기 - 리습 활용 팁
오토캐드 2016 이후, 사라지고 리본 메뉴로 변경된 치수 업데이트(UPdate) 기능을 키보드 단축 명령으로 만드는 방법을 간단하게 알아보자. 치수 업데이트 기능은 치수 스타일(dimstyle)에서 재지정(Ov
esajin.kr
※ 위 링크는 오토캐드 2016 버전 이상에서 제공되지 않는 `update`명령을 리습으로 만들어 사용하는 방법을 소개하고 있으니, 치수 재지정을 많이 하시는 분은 한번 참고해 보시기를 추천한다.
재지정의 문제점(?)
`특성창`, `스타일 관리자`, `시스템 변수`를 통해 변경된 치수 옵션이 적용된 치수 객체는, 이후에 치수 스타일 관리자에서 스타일 수정을 통해 해당 옵션의 값이 소급적용되지 않는다.
그래서, 치수 요소의 크기에 관련한 부분은 가급적이면 재지정하지 않는 것을 추천한다.
지금부터 본격적으로 재지정 옵션에 대해서 알아보자!
재지정으로 사용할 수 있는 치수 스타일 편집 강좌
재지정은 가능하면, 치수 기입을 끝내 놓고, 변경사항만 적용하는 것을 추천한다.^^
치수 스타일 재지정

명령창에서 `d` 또는 `dimstyle`를 입력하고 엔터 한 후, 좌측 스타일 리스트에서 재지정할 스타일 목록을 선택하고, 우측에서 재지정 버튼을 클릭한다.
치수선 탭 재지정
치수 선 탭에서는 치수 선과 치수 보조선에 대한 억제 부분만 재지정하는 것을 추천한다.
억제는 말 그대로, 치수선과 치수 보조선의 표시 여부를 조절하는 옵션이다.
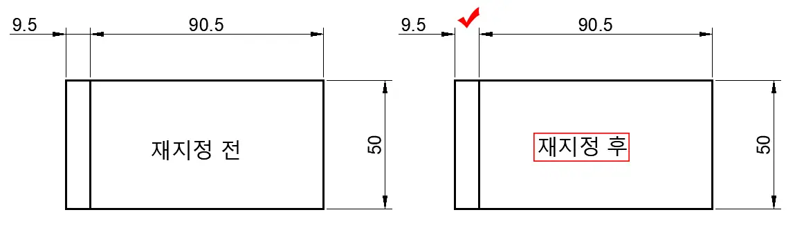
치수선 1과 치수보조선 1을 억제한 경우

보통의 경우에는 치수선과 치수 보조선의 억제가 필요하지 않지만, 대칭 치수나 선분 중복으로 도면이 깔끔하게 표현되지 않는 경우에 주로 사용한다.

위 그림과 같이 첫 번째 치수 보조선에 해당하는 치수 요소를 화면상에 숨길 수 있으며, 보통 `대칭치수`, `선형 지름 치수` 등과 같이 일부분을 숨길 때 사용하면 좋다.
치수 보조선 1과 치수 보조선 2를 모두 억제한 경우

`치수 보조선 1, 2`가 억제인 경우 나, `치수선 1, 2` 모두가 억제를 활성화할 때 경우, 모든 치수 요소가 화면상에서 제외된다.

치수 보조선이 도면 외형선이나 중심선, 단면선, 숨은선 등과 같이 중복될 때, 치수 보조선 1 또는 2를 억제 함으로써, 도면을 간결하고 깔끔하게 표현할 수 있다.
위 그림과 같이 도면 외형선과의 중복에서는 치수 보조선을 억제할 필요는 없다.
치수선, 치수 보조선 억제 치수 시스템 변수
치수선 억제 유무 : `DIMSD1`, `DIMSD2`
치수 보조선 억제 유무 : `DIMSE1`, `DIMSE2`
기본값 0이며, 1인 경우 해당 요소가 억제된다.
문자 탭 재지정
문자 탭에서는 재지정 요소가 많이 사용되는 요소는 문자 정렬이며, 그 외 옵션들은 대부분은 스타일 수정을 통해 전역 변수로 설정된다.
문자 주위에 프레임 그리기

문자 주위에 프레임 그리기 옵션은 절대 치수를 표현할 때, 사용하는 것으로 제도 규격에서 절대 치수는 허용오차 없이 도면상 완벽한 치수를 뜻한다.

일반적으로 절대 치수(설계 치수)는 특수한 경우 사용함으로, 어떻게 사용되고 있는지만 알고 있으면 될 것 같다.
별도의 치수 시스템 변수 명령은 존재하지 않는다.
문자 정렬
문자 정렬은 치수 문자를 치수선과 함께 도면상에 어떻게 표현할 것인지를 결정하는 내용이다.
일반적으로는 선형치수가 도면 치수의 기준이기 때문에, 치수선에 정렬이 기본값으로 사용해야 하며, 재지정으로 원과 호에 대한 지름, 반지름 치수를 기입할 때에는 필요에 따라 변경해서 사용할 필요가 있다.

기본적으로 치수선에 정렬로 치수를 표현하지만, 지름 또는 반지름 치수 기입 시, 치수가 바깥쪽을 향하고 있을 때, 치수선을 치수 보조선과 정렬되게 할 것 인지, 수평으로 유지할 것인지를 결정한다.

위 그림과 같이 `지름/반지름 치수선`을 펼쳐 표현할 것인지, 꺾어 표현할 것인지를 지정할 수 있으며, `ISO 표준`으로 수평으로 치수를 위치시킬 수 있도록 재지정에서 수행하는 기능이다.
수평 옵션은 거의 사용하지 않는 옵션으로 무시!
문자 정렬 치수 시스템 변수
`DIMTIH` - 치수선에 정렬과 ISO 표준을 ON/OFF로 토글 한다.
ON 이면 ISO표준 모드, OFF이면 치수선에 정렬이며, 기본값은 OFF이다.
맞춤 탭 재지정
맞춤 탭에 있는 옵션 내용은 치수 보조선 사이의 간격에 따라 치수 위치 및 치수선 및 치수선 화살표를 어떻게 표현할 것인 가를 지정하는 옵션들의 모음이다.
대부분은 치수 피처 축척으로 치수 요소들의 전체적인 크기를 지정하는 것으로 많이 사용하고 있지만, 도면의 특성에 따라 각종 맞춤 옵션을 재지정으로 변경해서 많이 사용한다.
맞춤 옵션

문자 또는 화살표(최대로 맞춤)를 기본값으로 사용하고 있으며, 치수 문자의 위치에 따라 또는 치수 보조선의 간격에 따라 화살표, 문자, 문자와 화살표 모두 등의 옵션으로 변경해서 사용할 수 있다.
맞춤 옵션은 선형 치수에서는 옵션을 거의 변경하지 않으며, 대부분은 `지름` 또는 `반지름` 치수에 많이 사용한다.
화살표 옵션 사용 시

맞춤 옵션이 화살표인 경우, 재지정된 지름 또는 반지름의 치수 값 위치에 따라 화살표의 위치도 같이 변경되는 옵션이다.
치수가 내부에 있으면 화살표도 내부로 들어가고, 외부에 있으면 화살표도 같이 외부로 위치가 변경된다.
문자 옵션 사용 시

치수 문자의 위치와는 상관없이 문자로 옵션이 재지정된 치수선의 화살표는 무조건 내부로 위치가 변경된다.
※ 표현한 도면의 형태에 따라 화살표, 문자, 문자 또는 화살표를 적절하게 옵션을 변경해서 사용하면 된다.
맞춤 옵션 치수 시스템 변수
`DIMATFIT` - 치수 보조선 사이에 치수 문자 및 화살표 배치
- `0` : 문자와 화살표 모두 (문자 및 화살표를 모두 바깥쪽으로 배치)
- `1` : 화살표 옵션 (치수 문자 위치에 따라 화살표 배치)
- `2` : 문자 옵션 (치수 문자의 위치에 상관없이 화살표를 안쪽으로 배치)
- `3` : "기본값" 문자 또는 화살표(최대로 맞춤)
문자 배치 옵션

문자 배치 옵션은 치수 보조선과 치수 보조선 사이의 간격이 좁아 치수 값을 보조선 사이에 배치할 수 없을 때, 치수 값을 어디에 배치할 것인가를 변경할 수 있는 옵션이다.
치수선 위, 지시선 사용 옵션 사용 시

치수 보조선과 치수 보조선이 너무 좁아 치수 문자의 위치를 적절하게 배치하기 어려울 때, 치수선위에 치수 문자를 배치하고 지시선을 표시하는 옵션으로, 복잡한 치수가 들어가야 하는 경우에 적절하게 사용하면 가독성을 최대한 높일 수 있다.
치수 문자의 위치가 변경되어도 지시선은 따라다닌다.
치수선 위, 지시선 없음 옵션 사용 시

치수선 위, 지시선 사용과 비슷하지만, 별도의 지시선을 표시하는 않고, 치수 문자를 사용자가 자유롭게 배치할 경우에 사용하지만, 복잡한 도면에서는 치수 문자가 혼돈될 수 있는 경우가 있어 사용에 주의가 필요한 옵션이다.
문자 배치 치수 시스템 변수
`DIMTMOVE` - 치수 문자의 배치 규칙을 설정한다.
- `0` : 치수선 옆에 배치 (치수 문자와 치수선을 항상 같이 배치)
- `1` : 치수선 위, 지시선 사용 (치수 문자 위치에 따라 지시선 사용)
- `2` : 지수선 위, 지시선 없음 (지시선 없이 치수 위치 변경)
최상으로 조정 옵션

최상으로 조정에서 치수 보조선 사이에 치수선 그리기 옵션은 치수 문자가 치수 보조선 사이에 들어가지 못하는 경우에 치수선을 생성 여부를 지정하는 옵션이다.
선형 치수인 경우에서는 거의 사용하지 않는 옵션이지만, 지름/반지름 치수에서는 상황에 따라 적절하게 재지정으로 변경해서 사용한다.
선형 치수에 적용한 경우

위 그림과 같이 치수 문자가 바깥으로 빠져 있는 경우, 치수 보조선 사이에 치수선을 작성하지 않는다. 일반적으로는 선형 치수는 치수 보조선 사이에 치수선을 표기하는 것을 원칙으로 하고 있다.
지름/반지름 치수에 적용한 경우

그리고, 같이 지름/반지름 치수에서는 내부에 치수선을 작성할 것인지를 결정할 수 있는 옵션으로 많이 사용하는 재지정 옵션이다.
도면의 상태, 복잡도에 따라 사용 유무를 결정하면 된다.
치수 보조선 사이에 치수선 그리기 치수 시스템 옵션
`DIMTOFL` - 치수 문자의 위치에 따른 치수보조선 사이에 치수선 표시 유무
- `ON`(기본값) : 치수 문자 위치에 상관없이 치수 보조선 사이에 치수선 표시
- `OFF` : 치수 문자가 치수 보조선 바깥으로 나간 경우, 치수선 사용하지 않음
1차 단위 탭 재지정

1차 단위에서는 거의 모든 옵션을 스타일 수정을 통해 변경되는 사항이지만, 측정 축척은 재지정으로 변경될 수 있는 옵션이다.
측정 축척은 상세도와 같이 축척(SCALE) 명령으로 확대 또는 축소된 도면을 축소 확대 배율로 줄이거나 키워서 값을 설정하여 실제 도면 크기값을 유지할 수 있도록 만들어주는 옵션이다.
자세한 사용 방법은 아래 링크를 통해서 공부해 볼 수 있다.
오토캐드 부분 상세도 작성 방법, feat. 치수 스타일 재지정 사용 강좌
오토캐드 도면 작성 시, 도면의 작은 부분을 별도로 크게 확대해서 도면으로 표시하는 것을 "상세도"라 한다. 기계, 건축뿐만 아니라 도면을 사용하는 거의 모든 분야에, 부분 상세도가 사용되고
esajin.kr
스타일 재지정된 상태에서 스타일 수정 방법

마지막으로, `스타일 재지정`된 상태에서 전역 변수를 수정해야 할 경우, 치수 스타일 관리자 대화상자, 좌측 스타일 리스트에서 해당 주 스타일을 선택하고, 좌측 수정 버튼을 클릭해서 전역 치수 변수를 수정하면, 재지정된 옵션을 제외하고 소급 적용되는 것을 확인할 수 있다.
이것으로, 오토캐드뿐만 아니라, 현재 국내/외에 사용되는 2차원 캐드에서 기본 공통적으로 사용되는 치수 기입에 따른 스타일 수정과 스타일 재지정에 관련해서 어느 정도 상세하게 설명하였다.
치수 기입뿐만 아니라, 치수 스타일에 관련한 내용은 정답이 없다. 조건과 상황에 따라 적극적으로 대처해야 하는 부분이기 때문에 시간 돼 때, 연습을 많이 해야 할 것이다.