- 알루미늄 프로파일을 이용한 간단한 액자 만들기
- 2020 프로파일과 코너블록을 이용한 깔끔한 액자 만드는 것을 설계부터 프로파일 주문까지 전 과정을 알아보자.

요즘, 이런저런 일로 인해 정신없이 바쁜 하루하루를 보내고 있다.
그 덕분에 회사의 업무도 소홀해지고, 부설 교육기관의 관리도 소홀해지는 것 같아, 마음을 다 잡고 다시 원활하게 돌아갈 수 있도록 수습해보려고 한다.
그래서, 가장 손쉽게 시설에 환경미화(?)를 위해서 간단한 액자 diy 과정을 포스팅해 본다.
솔직히 잘 만들어진 액자를 저렴한 가격으로 하나 장만해도 되겠지만, 예전부터 한번 해보고 싶었던 알루미늄 프로파일을 이용하여 형태 설계부터 조립, 설치까지 전 과정을 두 번에 걸쳐 포스팅한다.ㅎㅎ

액자라는 것 자체가 크게 복잡성을 띄고 있지 않기 때문에, 디자인이라고 까지 할 것은 없지만 알루미늄 프로파일을 내가 원하는 크기로 정확하게 절단해서 주문해야 하기 때문에 조금의 설계(?)를 통해서 필요한 치수를 확보한다.
알루미늄 프로파일은, 구조나 장비, 테이블, 작업대 등 활용할 수 있는 분야가 굉장히 많이 있지만, 알루미늄 특성상 가격대가 일반 스틸이나 목제보다는 높다는 안타까운 사실이다. ㅠㅠ
단순한 알루미늄 프로파일에 L자 브래킷이나 조인트 클립을 이용한 조립이 아닌, 부품다모아(https://hitc.kr)에서 판매하고 있는 스마트 코너 블록을 이용하여 조립할 수 있도록 도면을 작성했다.
부품다모아
알루미늄 프로파일,부속품,스마트 부품/간편조립,프로파일 차박,평탄화,축양장,가공,절단,조립,제작전문 쇼핑몰
hitc.kr
여기에서만 판매되고 있는 스마트 코너 블록은 기존의 조립방식과는 다르게 코너를 단단하게 고정할 수 있고, 손쉽게 조립이 가능할 수 있도록 만들어진 제품이다.
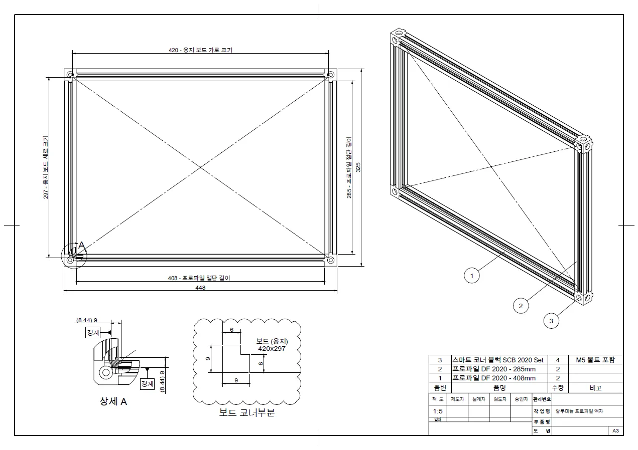
도면과 같이 프로파일은 2020 규격으로 가로, 세로 20mm로 된 프로파일을 이용하고, 조립되는 코너 블록도 SCB 2020으로 프로파일에 딱 맞는 제품으로 구성하도록 도면을 작성하고 크기를 체크했다.
솔리드웍스 용접 구조물을 이용한 액자 프레임 설계

액자의 크기를 선정하기 위해서는 제일 먼저, 액자의 보드 크기를 먼저 선정한다.
이번에 사용되는 보드는 A3 사이즈로 가로 420mm, 세로 297mm 된 사이즈로 알루미늄 프로파일 터널에 쏙 들어갈 수 있는 크기로 만들었다.
액자에 마운트 공간을 두겠다고 한다면, 마운트 공간의 포함하여 크기를 선정하면 될 것이다.
이번에는 마운트 없이 A3가 그대로 들어갈 수 있도록 했다.

알루미늄 프로파일 2020 단면 도면 파일은 부품다모아 쇼핑몰 자료실 또는 대영알미늄 사이트에서 제공하는 프로파일 단면 도면을 다운로드하여 솔리드웍스에서 도면을 불러와서 프로파일 구조를 만든다.
그림에서 보듯이 알루미늄 프로파일의 단면 모습은 대부분 이와 비슷하게 생기거나, 조금 더 복잡하게 생겼다.
https://www.dy-al.com/bbs/bbs/board.php?bo_table=drawing
도면
www.dy-al.com
이미 완성된 도면이 이여서, 별도의 형상이나 치수 구속은 필요하지 않지만, 솔리드웍스의 용접 구조물을 이용한 프레임 작성하기 때문에 기준이 되는 점의 위치를 잡아준다.
※ 실제 솔리드웍스 용접 구조물을 사용하기 위해서 사용자 프레임 단면을 작성할 때, 구조 스케치에 정확하게 일치시키기 위해서는 위와 같이 기준이 될 수 있는 곳에 점을 작성해 두는 것이 편리하다.

솔리드웍스 용접 구조물을 이용하여, 간단하게 프레임 구조를 작성할 수 있는 기능을 제공하고 있다.
용접구조물은 꼭 용접해야 하는 것만은 아니고, 단순한 프레임 구조를 작성하기 위해서도 사용하고, 용접이 필요한 경우 용접비드도 같이 추가할 수 있도록 되어 있다.
용접구조물의 프레임 구조 단면은 위에서 다운로드한 프로파일 단면을 솔리드웍스 용접 구조물에 사용할 수 있도록 변경해서 적용한 것이며, 이 부분에 대해서는 다음에 별도로 포스팅하도록 하겠다.

보드 크기(A3, 420x297)가 프로파일 터널에 들어갈 수 있도록 구조물의 기준 위치를 변경하고, 마운트 여백이 필요하다면, 최초 보드 스케치할 때 포함해서 크기를 변경하면 된다.
프로파일 배치를 클릭해서, 구조물 단면 스케치 수정에서 지정해 놓았던 점을 선택하여 위치를 변경한다.

불필요한 코너 부분 다듬기는 용접 구조물에 있는 잘라내기/늘리기를 이용하여, 부품 다모아에서 판매하는 스마트 코너블록(SCB 2020)이 들어갈 수 있도록 한다.
스마트 코너 블록을 이용하면, 프레임 절단 길이를 계산하는 부분이 굉장히 쉬워지며, 별도의 홀 작업은 필요 없어, 프로파일 표면을 이쁘게(?) 유지할 수 있다.
솔직히, 절단을 위한 프레임 길이 산출을 위한 작업은 여기 까지만 하면 된다.ㅎㅎ
필요한 부품 및 물량
| 종류 | 규격 | 수량 | 비고 |
| 프로파일 | DF2020 - 408mm | 2Ea / 탭 가공 4Ea | 부품다모아 |
| 프로파일 | DF2020 - 285mm | 2Ea / 탭 가공 4Ea | 부품다모아 |
| 코너블럭 | 2020 | 4Ea | 부품다모아 |
| 우드락 | 5T / 백색 | 1Ea | 동내 문방구 |
실제 필요한 양은 이것이 전부이지만, 프로파일 주문 시 주의해야 하는 부분이 코너블록 조립할 때, 볼트 조립을 위해 프로파일 절단면 중간 구멍에 M5 탭 구멍을 만들어 달라고 같이 주문해야 한다.
물품 주문
이렇게 길이와 수량을 체크했다면, 필요한 물건을 주문해 보자.

부품다모아는 알루미늄 프로파일 및 조립에 필요한 부품, 그리고 조립을 간편하게 해주는 스마트 조립 부품을 판매하는 전문 쇼핑몰이다.


제일 먼저 알루미늄 프로파일과 조립에 필요한 코너블록 2020을 을 주문해 보자.
프로파일은 특성상 필요한 만큼 잘라서 구매하면서, 꼭 탭 가공을 수량만큼 잘 주문해야 한다.
개인이나 회사에서 프로파일 절단 기계가 있다면 큰 문제가 없겠지만, 일반적으로 그런 기계를 갖춰놓고 있는 곳은 전문적인 장비 제조 업체나 가능하기 때문에, 애초에 구매할 때 필요한 길이를 정확하게 측정해서 주문해야 한다.
이 부품 다모아에서는 프로파일 길이를 mm단위로 계산할 수 있으며, 길이에 따라 계산되고, 직접 길이를 입력하기 때문에, 직관적으로 주문할 수 있어서, 다른 유사한 프로파일 관련 쇼핑몰보다는 훨씬 편리하다.
주문은 측정한 길이와 수량을 입력하고, 추가 버튼을 클릭해서 리스트에 추가하고, 중요한 것은 탭(TAP) 가공은 나사 탭을 직접 가공할 수 없다면, 필수적으로 선택해서 추가 가공된 상태로 상품을 받아야 한다.
스마트 코너 블록뿐만 아니라, 모든 조립 부품 중에서 프로파일 단면에 직접적으로 조립되는 부품들은 프로파일 단면 중간 홀에 나사 탭(TAP)이 있어야 조립이 가능하며, 탭 구멍은 알루미늄 프로파일 규격에 따라 정해져 있기 때문에, 꼭 나사 호칭을 정하지 않아도 된다.

장바구니에 담긴 물품, 2만 9천 원이라는 금액이 조금은 비싸 보이지만, 남다른 특이한 뭔가를 만들어서 활용할 수 있다는 부분은 돈으로 평가할 수 없는 것 같다.
이제 결제하고, 주문한 물건이 도착하기를 기다리자.
다음에는 도착한 프로파일을 이용하여 조립하는 과정과 액자에 들어갈 보드를 포함해서 활용하는 방법을 포스팅하도록 하겠다.