
내가 검도라는 운동을 시작 한지도, 2년 5개월이 지나가는 것 같다. ㅎㅎ
뭐, 작년 빌어먹을 코로나 확산할 때부터 올 초까지 근 1년은 운동과 담쌓고, 집에 가지런히 놓여 있는 죽도 또한 잡아보지도 못한 것 같다.
아이들과 함께하기 위해서 시작한 검도이지만, 이제는 무미건조한 일상에서 빼놓을 수 없을 정도로 내 생활 깊숙하게 들어와 있는 것 같다.
재미있고, 활동적이고, 이제는 조금씩 자립을 준비하는 아이들과 같이 할 수 있는 시간이 얼마 남지 않은 시간을 최대한 아이들과 교감하면서, 많은 시간을 보낼 수 있다는 점에서 매우 만족하게 운동하고 있는 것이다.
검도라는 운동은 솔직히 혼자 할 수 없는 운동이며, 검도의 진정한 묘미는 상대방과 죽도를 맞대고 있어야만 한다.
물론, 1 동작, 2 동작, 빠른 머리 치기, 허공 치기, 연격 등으로 연습할 수는 있지만, 이것은 단순히 기초적이고, 몸 풀이 운동에서 크게 벗어나지 않는다고 생각한다.

앞으로 코로나 재 확산 등과 같이, 어떠한 이유로 집합 금지나 다중이용시설 출입 금지 조치가 발생하면, 검도라는 운동은 그저 허공에 나무막대를 휘두르는 것 밖에 되지 않는 안타까운 운동이 되고 말 것이다.
그래서, "집에 검도 타격대 하나 있었으면 좋겠다"라는 생각을 작년 한 해 정말 많이 했다.
아파트에서는 소음으로 바로 싸움이 될 수 있겠지만, 내가 사는 곳은 주택(?, 빌라 일 수 있음. ㅋ)이고 옥상을 마음대로 사용할 수 있었기 때문에 더더욱 그런 생각을 했을 수 있었다.
아마, 검도인이라면 누구나 한 번쯤은 개인 타격대를 갖고 싶다는 생각을 했을 것이다. ㅎㅎ
이런 타격대를 2021년 초에 아이들 개인 연습과 내 운동을 목적으로 만들었고, 기성품으로 판매되는 검도 타격대는 70만 원을 넘는 고가이고, 덩치도 상당하기 때문에 개인이 구매해서 사용하기에는 너무나 어렵다고 생각한다.
인터넷을 뒤져보니 나무로 만드신 분도 있고, 각 파이프와 용접으로 만드신 분들도 있었다.
그렇다고, 만들어 사용하자니 제작 맡기는 인건비와 자재비도 고민스러웠는데, 알루미늄 프로파일이라는 분야를 알고 난 이후부터는 실행할 계획만 짰다.ㅎㅎ
검도 타격대 구조 설계 및 자재 구매

역시 내가 가장 잘하는 솔리드웍스를 이용해서, 타격대 기본 구조를 설계했다.
물론, 손으로 먼저 대략적인 형태와 크기를 정하고, 솔리드웍스 2D/3D 스케치로 기본 뼈대를 작성하고, 용접구조물을 이용해서 프로파일 구조를 배치했다.
타격대 크기는 내 신체 사이즈를 기본으로 전체 높이, 허리 크기, 손목 길이를 정하고, 다리 부분은 길지도 짧지도 않은 나름대로의 크기로 정하고, 허리 높이나 손목 높이는 차후에 변경이 가능함으로 길이에 대한 크기만 정하면 된다.
퇴근 후, 집에서 형태 구상하고 대략적으로 크기를 정하는데 약 1시간 정도, 스케치를 토대로 프로파일 구조 모델링하는데 5분..ㅋㅋ
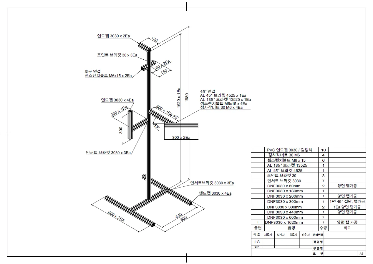
타격대 도면 다운로드
프로파일 및 부품 선택과 수량을 위해 도면 작업에 30분 정도 투자한 것 같고, 지금까지 그 어떤 곳에서도 찾아볼 수 없었던, 검도 타격대의 기본 구조가 탄생하는 순간이다.
아무것도 검증된 것도 없는 그저 도면으로만 나타난 형상이지만, 정말 우리 집 옥상에 설치된 듯한 뿌듯함이 든다.
기본적인 물품 길이와 수량이 나왔으면, 내용을 토대로 주문만 하면 된다.

프로파일 주문은 지난번에 노트북 테이블 조립용으로 주문했던 부품 다모아(https://hitc.kr) 쇼핑몰에서 구매를 했다.
이곳에는 다이캐스팅 브래킷을 이용한 조립 부품이 아닌, 손쉽게 조립될 수 있는 스마트 조립 부품을 판매하고 있기 때문이다.
지난 2번의 조립은 2020 프로파일을 사용했기 때문에, 코너블록 외 다른 스마트 부품을 사용하지 못했지만, 이번에는 3030프로 파일로 사용했기 때문에 몇몇 가지 조립에 편리성을 높일 수 있는 스마트 부품을 주문할 수 있었다.
부품다모아
알루미늄 프로파일,부속품,스마트 부품/간편조립,프로파일 차박,평탄화,축양장,가공,절단,조립,제작전문 쇼핑몰
hitc.kr
구조용 프로파일은 3030(가로 30mm, 세로 30mm) 크기로, 경량 제품을 주문했다.
3030이나 4040 같은 주로 많이 사용되는 프로파일은 경량 제품과 중량 제품을 나눠서 판매를 하고 있는 것 같은데, 쉽게 경하 중은 경량, 중하 중은 중량 프로파일을 선택하면 되는 것 같다.
타격대 자체에 큰 하중을 받아야 하는 것은 아니기 때문에, 그나마 저렴한 중량으로 선택한 것이다.
물품 리스트에서는 인서트 브래킷 3030은 기둥과 다리, 허리, 손목에 해당하는 부분을 조립하기 위해서 주문했으며, 조인트 브래킷 30은 차후, 호면(검도에서 머리에 쓰는 보호구)을 올릴 예정이기 때문에, 큰 타격은 있겠지만, 수직 타격이 대부분이기 때문에 인서트보다는 조금 약한 부품을 사용했다.
그리고, 고객 맞춤 결제는 손목 타격 부분의 45도 절단된 프로파일을 연결하기 위해서, 45도 AL브래킷과 135도 AL브래킷 각 1개씩 주문한 내용인데, 이 부품 다모아 쇼핑몰에서 직접적으로 주문할 수 없어, 전화로 수량에 맞게 견적을 받고, 금액만 쇼핑몰에서 결제한 것이다.
※ 쇼핑몰에 따라 있는 부품이 있고, 리스트에 없는 부품도 있는데, 필요한데 없는 것은 문의하면 자세하게 알려주는 것 같다.
주문 재료 및 부품 확인 및 타격대 구조 조립

주문한 프로파일 및 부품을 확인한다.
프로파일 1620mm를 제외하고는 큰 부품 없이 조그마한 부품으로 이루어져 있다.
어떻게 보면, 지난번에 만든 테이블보다 더 적은 것 같은데, 인서트 브래킷과 조인트 브래킷의 영향으로 수량과 부피가 더더욱 작아진 느낌이다. ㅎㅎ
손목 타격 부분 조립

제일 먼저 조립한 것은 손목 타격 부분이다.
손목 타격 부분은 300mm 1개에 45도 가공한 후, 팔뚝에 해당하는 프로파일을 붙이는 형태이기 때문에 다른 조립 부분보다는 조금(?) 복잡하게 생겼다.
그리고, 45도 AL브래킷과 135도 AL브래킷을 이용해서 조립해야 하므로, 처음에는 느슨하게 볼트로 조립해 놓고, 전체적인 위치와 자세를 맞추고, 힘껏 조이면 된다.
조립에 필요한 공구는 렌치(셈스) 볼트 M6을 사용하기 때문에, 5mm L 렌치가 필요하다.
기둥에 허리 및 손목 타격부 조립

허리와 앞에서 조립해 놓았던, 손목 타격 부분을 인서트 브래킷을 이용하여 조립한다.
인서트 브래킷을 이용해서 조립하기 위해서는 인서트 브래킷이 들어가는 프로파일 절단면에 브래킷 삽입 가공이 되어 있어야만, 위 사진과 같이 프로파일 안으로 쏙~ 들어가게 된다.
인서트 브래킷 장착은 연결 프로파일에 인서트 브래킷을 넣고, 센터 볼트를 힘껏 조이면 끝난다.

인서트 브래킷에 달려있는 직육면체 너트를 프로파일 터널에 밀어 넣고, 인 스터 브래킷 뭉치에 있는 두 개의 볼트를 조이면 기둥과 허리 태격부와 손목 타격부의 조립은 완료된다.
정말 쉽고 간단하게 조립이 완료된다. ㅎㅎ
그리고, 나중에 높낮이를 변경하려면, 마지막으로 조였던, 볼트를 살짝 풀어서 위치를 바꾸고, 다시 조이면 끝난다.
필요한 공구는 둥근 머리 렌치 볼트 M6과 렌치 볼트 M5를 사용하기 때문에 4mm L 렌치가 필요하다.
상부, 머리 타격부 조립

머리 타격부는 나중에 호면(머리 보호구)을 설치하는 것이기 때문에 앞에서 말했듯이, 조인트 브래킷을 이용해서 조립한다.
조인트 브래킷은 인서트 브래킷과 달리, 프로파일 자체에 별도의 보링 가공은 없지만, 센터 볼트 조립을 위해 탭 가공은 이루어져 있어야 한다.
조인트 브래킷 조립은 조인트 브래킷 뭉치에 같이 배송된 센터 볼트를 넣고, 프로파일에 십자드라이버로 조이기만 하면 된다.
단, 센터 볼트는 힘껏 조이는 것이 아니라, 더 이상 조이지 않는 부분까지 약하게 조립해 두면 된다.

프로파일 조립은 인서트 브래킷 조립과 동일하게 조인트 브래킷 뭉치를 프로파일 터널에 밀어 넣고, 뭉치에 있는 무두 볼트 2개를 조이면 조립이 끝난다.
위치 변경도 인서트 브래킷과 동일하게 무두 볼트를 살짝 풀어놓고, 위치 수정 후 다시 조이면 된다.
인서트 브래킷 대신, 조인트 브래킷을 사용한 이유는 머리 타격부는 제일 많이 타격되는 부분이지만, 수직으로 타격하는 내용이 제일 많기 때문에 고 하중의 인서트 브래킷은 필요가 없다.
조립에 필요한 부품은 센터 볼트 조립은 십자드라이버, 사이드 무두 볼트는 2.5mm L 렌치 또는 T 렌치가 필요하며, L렌치보다는 T렌치 사용이 조금 더 편리하다.
최종으로 타격대 다리 조립

타격대 다리 부분은 인서트 브래킷으로 허리, 손목 타격부와 동일하게 조립하면 된다.
다만, 조립하는 순서가 필요하다.
- 기둥에 인서트 브래킷을 넣어 조립한다.
- 가로 440mm 프로파일을 기둥 인서트 브래킷에 먼저 밀어 넣는다.
- 400mm 프로파 링 양 끝에 인서트 브래킷을 조립한다.
- 600mm 세로 프로파일 2개를 400mm에 있는 인서트 브래킷에 밀어 넣는다.
- 4mm 렌치를 이용해서 위치를 맞추고, 힘껏 조여 조립을 완료한다.
제일 마지막으로, 호면 귀 쪽에 있는 60mm 프로파일을 제외한 너머지 프로파일 단면 부분에 엔드캡을 부탁하여 조립을 완성한다.
최종 완성된 타격대 구조

완성된 타격대 구조이다.
조금 힘없이 보이기는 하지만, 알루미늄 프로파일 자체가 단단하고, 조립된 브래킷들도 실제 공장들의 장비에 들어가는 부품들이기 때문에 죽도로 아무리 힘껏 때린다고 하더라도 알루미늄을 깨는 일은 없을 것이기 때문에 안정성에서는 큰 문제가 없어 보인다.
여기까지 조립하는데, 약 10분 정도 소요된 것 같다.
앞전에 다이케스팅 브래킷으로 조립하는 것에 비하면, 엄청나게 빠르게 조립이 끝났다.
자.. 지금부터는 알루미늄 구조에 실제 타격을 하기 위해서 타격 부를 설치해 보자.
머리, 허리, 손목 타격 부 설치

프로파일 구조에 머리, 허리, 손목 타격 부위는 전부 검도 보호장구를 이용해서 조립한다.
물론, 일반 기성품은 폐 타이어를 이용해서 만들어져 있지만, 여러 사람이 사용하는 것도 아니고, 대부분 혼자 사용하는 것이기에 못쓰는 호구 장비를 이용했다.
중요한 것은 호구를 이용하면 정말 상대방이 앞에 있는 것 같은 느낌을 주는 것 같아, 연습에도 도움이 될 듯하다.
호면(머리 보호구)은 내가 다니는 도장에서 너무 오래되고 못쓰는 것으로 얻었고, 호완(손/손목 보호구)은 지금은 사용하지 않지만, 내가 처음 검도를 시작할 때, 사범님에게 선물(?) 받았던 오래된 것을 재활용한다.
즉, 알루미늄 프로파일과 관련 조립부품을 제외하고, 돈 한 푼 들이지 않고 만든 것이다.ㅋ
머리 타격부 설치

호면 끈을 풀어둔 상태에서 상단 충격 흡수를 위해 못쓰는 수건을 넣은 후, 호면을 프로파일과 일치하게 끔 한다.
그리고, 호면을 고정하기 위해서 60mm 프로파일 센터 구멍이 있는 위치에 송곳으로 구멍을 낸 후, 송곳을 빙글빙글 돌려 구멍을 살짝 넓혀준다.

그리고, 그 구멍에 셈스 렌치 M6 볼트를 이용해서 조여주면, 머리 타격 부분의 설치는 마무리된다.
허리 및 손목 타격 부위 설치

허리와 손목은 호완을 이용하여, 설치하는데, 설치하기 앞서 호완에 묶여있는 끝을 전부 풀어 둔다.
프로파일 구조에 단순히 꽂아 넣을 것이라면, 풀지 않아도 되겠지만, 타격 충격을 흡수시키기 위해서 안에 못쓰는 수건을 넣을 예정이기 때문에 풀어서 놓는 것이 나중에 장착할 때 편리하다.

손목과 허리 타격 부위에 못쓰는 수건 2장 정도를 잘 말아서, 케이블 타이 등으로 잘 묶어 둔다.
이것으로 우리 집에서 버리자니 아깝고, 쓰자니 찝찝한 수건을 모두 재활용 처리했다. ㅋ

감싼 수건 위에 호완을 잘 들어가게 해 둔 후, 풀었던 호완 끈을 다시 깔끔하게 묶어 주면, 허리 타격부와 손목 타격부가 완성된다.
만약에 수건이 없다면, 그냥 프로파일에 거치해도 되겠지만, 실제 타격했을 때 죽도가 깨지는 것은 불상사가 생길 수 있기 때문에 수건 대신 스펀지 같은 것이고 넣어야 타격하는 손 맛도 좋고, 소리도 경쾌할 것이다.
완성된 검도 타격대


완성된 타격대의 위풍당당한 모습이다.
처음에는 그냥 있는 그대로 사용하려고 했었는데, 머리 타격이나 손목 타격에서는 큰 문제가 없었는데, 허리나 찌름에서는 중량감이 없어 옆으로 많이 밀리는 현상이 발생했다.
모래주머니를 이용할까 생각했다가, 집 근처 정비소에서 폐 타이어 두 개를 얻어와서(정비소 사장님이 빨리 가져가라며 공짜로 줌) 올려놓으니 크기도 딱 좋고, 중량감으로 웬만한 타격에도 큰 밀림 없이 안정적으로 지탱해주고 있다.
성공인 것 같은데, 약간의 문제가 다리에 들어간 440mm 가로 연결 프로파일이 3030 하나만 들어간 관계로, 앞뒤로 약간 흔들거리는 문제가 발생하는 데, 이것은 차후 보강을 해야 할 것 같다.
프로파일 자체가 흔들거리는 것은 얇아서 어쩔 수 없지만, 연결 부분이 약간 뒤틀리면서 흔들거리는 부분은 차후 내구성에 문제가 발생할 소지가 다분할 것 같은 느낌이다.
검도를 운동을 하시는 분들이라면, 누구나 탐 낼 만한 물건이지 않을까 싶다. ㅋㅋㅋ
기존 타격대의 1/10도 안 되는 아주 저렴한 가격대에 나름대로 퀄리티 높고, 내구성도 좋은 것 같은 이런 타격대 제작을 여러분들도 한번 시도해 보시기를 바란다.
도면에 프로파일 길이, 수량 등 자세하게 기재되어 있기 때문에, 나중에 주문할 때 프로파일 길이만 살짝 변경해서 주문하면 누구나 쉽게 만들 수 있을 것이다.^^
조립에 필요한 공구는 십자드라이버, 5mm, 4mm, 2.5mm 렌치만 있으면 된다.
