알루미늄 프로파일 DIY, 프로파일 3030 및 3060을 이용한 심플한 책상 만들기 위해, 필요한 부품과 만드는 과정을 간단하게 소개한다.
신학기 자취생에게 필요한 간편한 책상, 좌식 테이블등 다양하게 구성할 수 있는 프로파일 가구 제작 방법

나의 소중한 보금자리에는 안타갑지만, 나만의 작업 공간이 별도로 없다.
지금까지, 거실 한편에 좌식 테이블에서 지금까지 블로그 포스팅, 유튜브 영상 등을 만들었는데, 허리와 다리가 아파서 오랫동안 집중해서 작업할 수 없는 그런 환경이었다.
시중에 판매되는 학생용 책상은 너무 크고, 필요에 따라 옮겨 다니기 힘들 것 같아서, 노트북과 듀얼모니터 그리고, 마우스만 올라갈 수 있는 가볍고 튼튼한(?) 책상을 직접 내 손으로 만들어 보았다.

거실 한편에 마련된, 나만의 작업공간, 깔끔하고, 심플함을 최대한 살려, 집안 인테리어와도 크게 어색하지 않게 디자인(?)하고, 구조를 설계했다.
필요한 프로파일과 부품, 책상 상판 주문하고, 제품을 받고 저녁에 1시간 남짓한 시간에 완성한 나의 책상이다.ㅎㅎ
설계 및 제작에서 문제점은 본문 끝에 설명되어 있어, 이 글을 보고 책상 테이블을 생각하시는 분들은 꼭 참고하기 바란다.^^
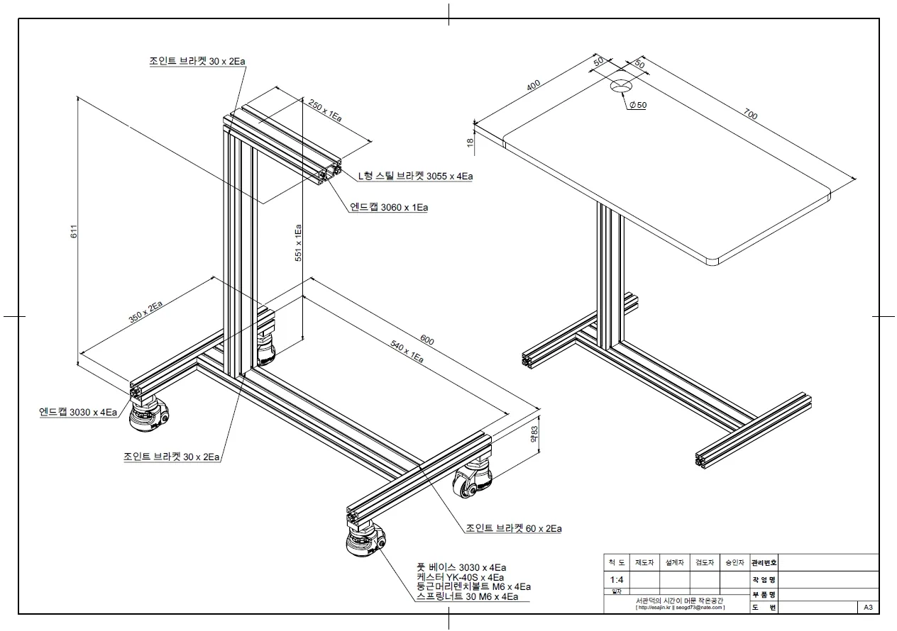
책상 구조 디자인 및 설계 도면

※ 광고로 인해, PDF 도면의 다운로드 링크가 보이지 않는 경우, F5를 한번 눌러주면 볼 수 있다.
위 도면은, 초기 도면으로, 내가 알아볼 수 있을 정도로만 작성한 도면이기 때문에, 조금 더 정리해서 올리도록 하겠다.
준비물 및 주문 구매품
| 구분 | 품명 및 규격 | 수량 | 비고 |
| 부품다모아 구매 https://hitc.kr |
프로파일 DNF3060 x 551mm | 1Ea | 경량 |
| 프로파일 DNF3060 x 540mm | 1Ea | 경량 | |
| 프로파일 DNF3060 x 200mm | 1Ea | 경량 | |
| 프로파일 DNF3030 x 350mm | 2Ea | 경량 | |
| 탭 가공 | 16Ea | 모두 양면 탭 가공 | |
| 조인트 브라켓 60계열 | 2Ea | 구조 조립용 | |
| 조인트 브라켓 30계열 | 4Ea | ||
| 케스터 YK-40/S M8 | 4Ea | 바닥 바퀴관련 부품 | |
| 풋 베이스 3030 | 4Ea | ||
| 둥근머리렌치볼트 M6x15 | 4Ea | ||
| 정사각형 너트 30 M6 | 4Ea | ||
| L형 스틸 브라켓 3055 | 5Ea | 상판 고정용 부품 | |
| 셈스렌치볼트 M6x15 | 10Ea | ||
| 정사각형 너트 30 M6 | 20Ea | ||
| PVC엔드캡 3060/검정색 | 1Ea | 상판 부분 끝단 마감 | |
| PVC엔드캡 3030/검정색 | 4Ea | 다리 부분 끝단 마감 | |
| 손잡이닷컴 구매 https://sonjabee.com |
미송집성목 400x700x18 | 1Ea | 상판 |
| 다이소 구매 | 목재용 피스 나사 | 1통 | 상판 고정용 |
| 와샤 지름5mm | 1통 | 상판 고정용 | |
| 조립 공구 | 십자드라이버 | 조인트 브라켓 용 | |
| L형, T형 육각렌치 5mm | 셈스렌치볼트 M6용 | ||
| L형, T형 육각렌치 4mm | 둥근머리볼트 M6용 | ||
| L형, T형 육각렌치 2.5mm | 조인트 브라켓 용 | ||
| 고무 또는 플라스틱 망치 | 없어도 됨 |
※ 조립을 위한 탭 가공은 가능하면, 모든 프로파일에 양면으로 작업해 두는 것을 추천한다. 직접 탭 작업을 할 수 있으면 상관없겠지만, 그렇지 못하다면 비용 조금 더 주고 미리 만들어 두면, 차후 더 추가하거나, 나른 목적으로 재활용해야 할 때 생각보다 좋을 것이다.
광고는 아니지만, 예전부터 프로파일 및 목재를 구입했던 곳으로, 부품다모아는 (주)대영알미늄 프로파일을 취급하고 있으며, 쉽고 깔끔하게 조립할 수 있는 각종 스마트 조립 부품과 관련 부품 등이 간결하게 정리되어 있고 특히, 프로파일 길이 선택이 정말 쉽다. 손잡이닷컴은 목재를 포함해서 다양한 리폼 및 DIY용품들을 한 곳에서 구매할 수 있다.
부품다모아
알루미늄 프로파일,부속품,스마트 부품/간편조립,프로파일 차박,평탄화,축양장,가공,절단,조립,제작전문 쇼핑몰
hitc.kr
제대로된 DIY 쇼핑몰 손잡이닷컴
셀프인테리어, DIY, 손잡이, 문고리, 목재재단, CNC가공, 조명, 페인트, 철물, 파이프절단
www.sonjabee.com
조립/제작 과정
각종 물품들이 도착했다면, 프로파일과 목재를 절단하면서 생기는 칩들이 떨어지기 때문에, 우선 바닥에 신문지 등 깔아 두고 작업하는 것을 추천한다.
전체적인 조립은 아래에서부터 위쪽으로 올라오면 되고, 조인트 브라켓 조립 후, 밀어 넣으면 되기 때문에 조립은 특별히 어렵지 않다.
바퀴(캐스터) 부분 조립

3030 프로파일에 우선, 풋 베이스 3030을 둥근 머리렌치볼트와 정사각형 너트로 먼저 조립한 후, 캐스터를 조립하면 된다.
이때, 끝에 엔드캡으로 마감함으로, 풋 베이스를 약 5mm 정도 바깥으로 튀어나오게 조립한다. (캐스터는 제일 마지막에 조립해도 된다.^^)
※ 캐스터(바퀴)는 조금(?) 비싸지만, 집에서 사용하는 것이기 때문에, 스토퍼가 되고 이쁘게 생긴 캐스터로 선정했다.
3060에 조인트 브라켓 조립


기둥에 해당하는 551mm는 조인트 브라켓 30 계열로 양쪽 모두 좌측 사진과 같이 조립하고, 가로 구조 바에 해당하는 540mm는 조인트 브라켓 60 계열로 조립한다.
이때, 십자드라이버로 조을 때, 살짝 걸릴 때까지만 조립하면 된다. 너무 빡빡하게 조이면, 조립이 되지 않는 불상사가 생길 수 있다.
기본 구조 조립



조인트 브라켓 조립이 끝났다면, 540mm와 551mm 기둥을 먼저 조립 후(좌측 그림), 앞에서 조립해 놓은 바퀴 구조와 조립(중간 이미지)한다.
마지막으로, 위치를 잡고, 2.5mm 렌치로 조인트 브라켓 사이드 무두 볼트를 조여서, 단단하게 고정(우측 이미지)한다.
상판 조립용 브라켓 조립

제일 상단에서 판재를 잡아줄 200mm 3060 프로파일에 L형 스틸 브라켓을 조립한다.
프로파일 터널에 브라켓을 쉽게 조립하는 방법은 브라켓에 셈스렌치볼트와 너트를 살짝 먼저 조립해 둔 상태에서, 프로파일 터널로 밀어 넣으면, 그나마 쉽게 조립할 수 있다.
※ 이번 주문에서는 스프링 너트를 사용했는데, 스프링 너트보다는 정사각형 너트가 훨씬 조립이 좋은 것 같아, 위에 부품 리스트에서는 실제 주문과는 달리 정사각형 너트를 추천했다.
셈스렌치볼트는 흘러내리지 않고, 흔들리지 않을 정도로만 살짝 조이면 된다.

전체적으로는 이런 느낌으로 조립된다.
뼈대 구조만 있지만, 스마트 조립 부품의 진가가 발휘되는 것 같다. 프로파일 옆으로 덕지덕지 붙은 부품도 필요 없고, 또 프로파일 측면에 홀 가공해서 조립하지 않아도 된다.
참고로, 앞에서 조립한, 상판 지지대는 지금 조립하면 나무 상판 조립이 귀찮아진다.^^
미송집성목과 지지대 조립

판재의 위 부분을 밑어로 엎어두고, 앞에 조립해 둔 상판 지지대 프로파일이 배치될 위치를 지정한 후, 스틸 브라켓이 나무 바닥에 붙도록 하고, 셈스렌치볼트 어느 정도 힘껏 조여서 고정한다.
셈스볼트가 어느 정도 단단하게 조립된 후, 목재용 피스에 와샤를 넣고, 스틸 브라켓 구멍 바깥 가장자리 쪽으로 붙여서 단단하게 조립한 후, 앞에서 조립해 둔 다리와 기둥 구조에 조립하면 끝난다.
※ 미송집성목이 생각보다 무르기 때문에 너무 많이 조이면, 나무가 빠가날 수 있으니 적당한 힘으로 조여야 한다.
프로파일 테이블 최종 완성

상판과 지지대 조립이 끝났다면, 프레임 구조에 밀어 넣고 기둥에 조립되어 있는 조인트 브라켓을 단단히 조이면 조립은 끝난다.
※ 만약, 프로파일의 위치가 변경되어야 한다면, 조립한 조인트 브라켓 무두볼트를 조금 푼 상태에서, 프로파일의 위치 변경하고 다시 조이면 된다.
알루미늄 프로파일의 장/단점
장점은 역시나 튼튼한 내구성과 언제든지 분해 조립이 가능함으로, 불필요할 때는 분해해 두었다가, 필요할 때 다시 조립해서 사용해도, 조립 내구성에는 큰 문제가 없다.
또한, 만들어진 구조에서 추가적인 요소들을 더 추가해서, 구조를 변경하거나, 편리성을 추가할 수 있으며, 사용자의 입맛에 맞게 구조 설계가 가능하다.
단점으로는 비싸다. ㅠㅠ 알루미늄은 다른 철제보다 비싸기 때문에, 가성비를 생각한다면 프로파일보다는 일반 기성 제품이 훨씬 더 저렴하고, 디자인도 이쁜 것들이 많다.
그리고, 부품 선정에서 많은 고민이 필요하다. 어떤 프로파일을 사용할 것인지, 어떻게 조립할 것인지에 따라, 부품들이 정말 다양하게 적용될 수 있다.
특히, 볼트는 볼트의 길이를 잘못 선정하면, 조립이 불가능할 수도 있는데, 부품 선정이 어려울 때는, 구매하고자 하는 업체에 직접 물어보거나, 견적을 요청하면 된다.^^
이번 작업에서의 문제점!!
호기롭게 디자인하고, 솔리드웍스를 통해 구조도 설계하면서, 만들어 놓으면 정말 심플하고, 간결하게 책상이 생길 것 같아 기분이 정말 좋았다.
하지만, 조립 후, 실제 사용해 본 결과, 어느 정도는 예상했지만 생각보다 큰 문제점이 발생했다.ㅠ
이번 프로파일 책상 구조에서 가장 큰 문제점은 흔들림이다. 지난 두어 번의 프로파일 조립을 통해, 한 개의 다리만 가지고 있으면, 분명 흔들리 것 같아, 기둥 다리와 하부 지지대를 전부 3060으로 했지만, 그래도 한 개의 다리는 흔들리는 것이다.
역시, 다리는 1개보다는 2개가 좋고, 2개보다는 4개가 훨씬 튼튼하고, 흔들림도 없다는 불변의 법칙을 다시금 생각하게 하는 작업이다.ㅠㅠ
아! 다리 1개짜리 테이블이 정말 이쁘고, 간결하게 보였는데, 조금은 아쉬운 작업이다. 흔들림을 막기 위해서 프로파일 및 부품 그리고, 몇 가지 추가 부품을 더 주문해야겠다.
나중에 이와 비슷한 형태를 만들 경우가 생기면, 그때는 경량이 아닌 중량 프로파일로 바꾸고, 기둥도 3060에서 6060으로 변경해서 흔들림을 줄이거나, 아니면 아예 확실하게 40 계열 프로파일 사용도 심각하게 고민해야 할 필요가 있을 것 같다.
보완된 내용은 다음에 따로 소개하며, 어떻게 보완되었을지 한번 기대해 봐도 좋을 것 같다. ㅎㅎ