- 네이버 지식인에 올라온 질문에 대한 모델링 방법 소개
- 가칭 송풍구 상부 형상으로 기본적인 돌출과 로프트, 필렛, 쉘로 이루어진 단순한 형상인데, 도면이 제대로 표현과 지시가 이루어지지 않아 조금은 혼돈될 수 있는 도면을 통한 해결 방법

이번 작업의 핵심은 판금 형상이지만, 판금 절곡과는 약간 차이가 있는 형상이고, 사출 또는 다이케스팅 관련된 형상도 아닌 것 같다.
질문으로 올라온 것은 연습용으로 이루어진 도면 같은데, 이 작업에 있어서 순서가 아주 중요한 요소이다.
인벤터 모델링 과제
어떻게 그려야될지 모르겠습니다.인벤터가 아니여도 솔리드웍스, 카티아, UG NX 와 같은거여도 되니 이와 똑같은 도면 그리는 유튜브 영상 링크나 어떻게 그려야되는지 알려주시면 감사...
kin.naver.com
상기 링크는 모델링 방법을 문의한 내용의 원문 링크이며, 아쉽지만 이미 답변이 채택되어 내가 나설 여지는 없는 것 같다.ㅎㅎ
하지만, 또 재미있는 형상이지만, 조금 부족한 도면도 이렇게 찰떡같이 알아보는구나 를 느낄 수 있는 내용일 수 있다.
이 질문하신 분은 인벤터를 이용한 작업을 기본으로 요구하지만, 다른 툴도 허용하고 있어, 솔리드웍스로 포스팅하지만, 내용은 인벤터와 거의 흡사하다. 다만, 면 분할과 쉘 부분에서는 조금 작업 차이가 발생할 수 있는 부분이 있다.
도면 다운로드
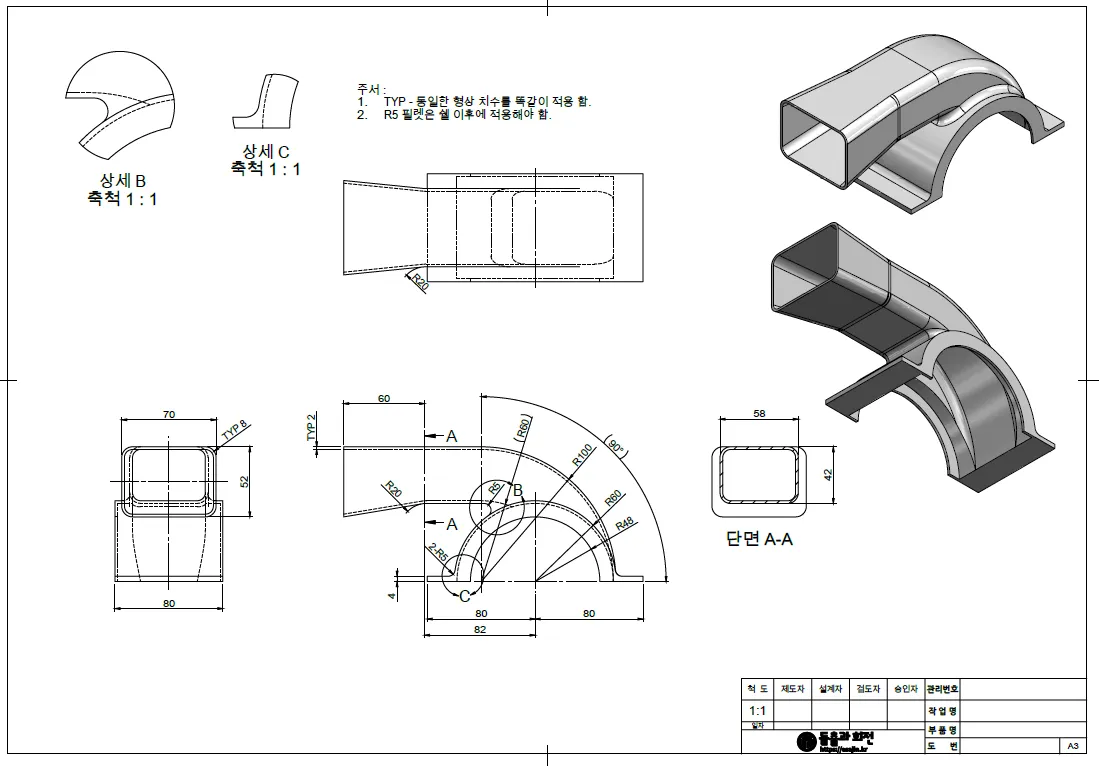
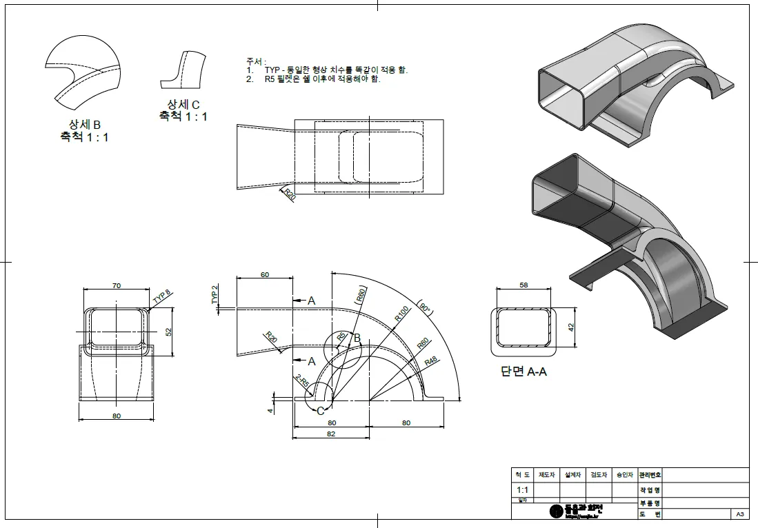
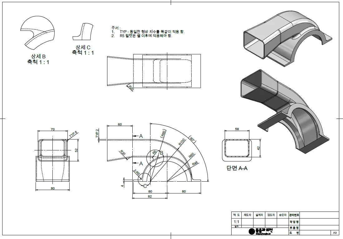
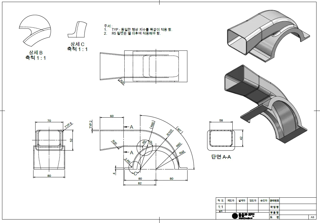
상기 도면은 네이버 지식인의 질문자가 첨부한 도면을 토대로 직접 모델링하고, 작성한 도면으로, 기존 첨부 도면에서 부족한 부분을 조금 더 추가해서 작성한 도면이다.
솔리드웍스 따라 하기
앞에서도 언급했지만, 이 모델링 따라 하기는 우선, 도면 검토가 어느 정도 되어야 하기 때문에, 충분히 새롭게 만들어진 도면을 확인하고, 같이 따라 했으면 좋겠다.
특히, 상세 B와 상세 C 부분을 어떻게 처리하면 좋을 것인지도 같이 생각하면 좋을 것이다.
기준 형상 모델링

제일 먼저 우측면을 기준으로 새 스케치를 시작하고, 도면과 같이 정면도를 기준으로 기본 스케치를 작성한다.
여기서 중요한 것은, 제공하는 도면의 B 상세 부분에 작성되는 호는 `R100`과 동심이 같고, 좌측에 작성된 선분과 접선이 된 상태로 작성해야 한다.
그리고, `R100`에 해당하는 호의 중심은 `160mm` 선분에 일치하도록 해야 한다.
※ 질문 도면의 가장 큰 문제점은 `R100`에 대한 중심 위치와, 중심선이 제대로 표시되지 않아, `42mm` 아래쪽에 있는 짧은 선과 도시 없는 호의 형태가 정말 애매했기 때문에 어렵고 헛갈렸던 것이다.

스케치를 마무리하고, 피처 탭 돌출 보스/베이스로 기준 형상을 작성한다.
- 피처 탭, 돌출 보스/베이스를 클릭하여 명령을 실행한다.
- 선택 프로파일을 하부에 해당하는 영역 또는 가장자리 윤곽선을 선택한다.
- 돌출 방향은 중간 평면으로 설정하고, 돌출 값은 80으로 입력하고, 돌출 형상을 모델링한다.


기준 형상을 돌출 후, 해당 돌출 피처 하위에 있는 스케치를 다시 선택하고, 상부 통 부분을 돌출한다.
좌측 이미지
- 돌출 피처 하위에서 해당 스케치를 다시 선택하고,
- 돌출 보스/베이스를 실행한다.
우측 이미지
- 돌출 영역을 상부 빈 영역을 선택하고,
- 돌출 방향 1에서 방향을 중간 평면으로 설정하고, 값을 58로 입력하고 형상을 완성한다.
로프트를 이용한 모델링

명령 창 참조 형상에서 기준면을 선택하고, 새로운 사용자 평면을 생성한다.
- 상단 커멘드 매니저에서 참조 형상에서 기준면을 선택한다.
- 기준면 속성 창에서 제1 참조를 앞서 돌출되고 도면상에서 단면이 된 면을 선택한다.
- 기준면 간격 띄우기 값을 도면과 같이 60으로 지정한다. 만약, 반대 방향으로 진행한다면, 오프셋 뒤집기를 클릭한다.

새롭게 생성된 평면을 기준으로 새 스케치를 작성한다.
- 새롭게 생성된 사용자 평면을 선택하고, 새 스케치를 작성한다.
- 도면과 같이 송풍기 끝 부분을 그림과 같이 스케치를 작성하고 완료한다.

로프트 보스/베이스를 이용하여 단면 크기 또는 모양이 다른 형상을 작성한다.
- 커멘드 매니저에서 로프트 보스/베이스를 실행한다.
- 로프트 단면을 작성된 스케치와 돌출된 형상의 면을 선택한 후, 미리 보기 되는 면이 꼬이거나 보이지 않는 경우, 녹색 점으로 이루어진 점의 위치를 선택한 두 프로파일이 일치되도록 위치를 변경한 후, 작성을 완료한다.


로프트로 기본적인 형상 모델링이 완료되었다면, 필요한 모서리 필렛을 적용한다.
좌측 이미지
- 필렛으로 돌출부분과 로프트 부분의 경계 모서리를 선택하고, 반지름 값 `20`을 입력하고 등록한다.
우측 이미지
- 동일하게 필렛을 다시 실행하고, 반지름 `8mm`가 적용될 모서리를 전부 선택한다.
※ 여기서 중요한 것은 `5mm` 필렛은 지금 적용하지 않는다.
쉘을 위한 면 분할


모델링 된 형상 중에서 반지름 60mm짜리 반원통의 평면을 선택하고, 새 스케치를 작성한 후, 우측 그림과 같이 도면과 동일하게 96mm 원을 스케치한 후, 마무리한다.

커멘드 매니저 곡선 탭에서 분할선을 선택하고, 스케치를 기준으로 면을 분할한다.
- 곡선 탭에서 분할선을 선택하여, 면 분할 명령을 실행한다.
- 분할 유형은 투영식으로, 스케치에 직각하는 방향에 있는 선택한 면을 분할할 수 있도록 한다.
- 면 분할 기준이 되는 스케치를 선택한다.
- 분할될 면을 필요한 만큼 선택하고, 스케치 기준으로 면을 분할한다.
형상 쉘 작업

피처 편집에서 쉘을 이용해서 모델링 된 형상의 두께를 지정하고, 내부를 제거한다.
- 피처 편집에서 쉘을 실행한다.
- 쉘 두께 값을 2로 지정하고, 제거할 면을 선택한다. 분할된 면, 160mm 하부 면, 로프트 된 끝 면을 각각 선택한다.
- 쉘 두께 2mm가 적용되지 않아야 하는 부분 또는 다른 두께로 적용되어야 하는 부분에 대한 면을 먼저 선택한 후, 두께 4mm를 입력하고, 형상을 완성한다.
마지막으로, R5 모깎기 적용

쉘을 이용해서 내부를 제거한 후, 최종적으로 R5mm가 적용될 모서리에 모깎기를 선택한다.
지식인 질문자 분께서 작업에 어렵게 느꼈던 부분은 필렛 부분은 언제 처리해야 할지 몰랐거나, 제시한 초기 도면에 제대로 지시가 없어 도면 해독하는 부분에서 어려움을 겪었을 것 같다.
나 또한, 처음에 이 부분에서 몇 번의 시행 착오가 있었다.
