솔리드웍스, 인벤터, 카티아, UG-NX 및 오토캐드 3D 모델링 연습 도면
자격시험 준비, 캐드 실무능력 향상을 위한 도면 공유

매번 국가기술자격시험 기출문제나 고만고만한 도면을 가지고 연습하려니 재미가 없을 것이다.
따라 하기 도면이야 다 비슷하지만, 내가 제공하는 도면은 조금 다른 묘미를 가지고 있는 도면 자료를 공유하려고 노력한다.
PDF도면 및 부품파일 다운로드
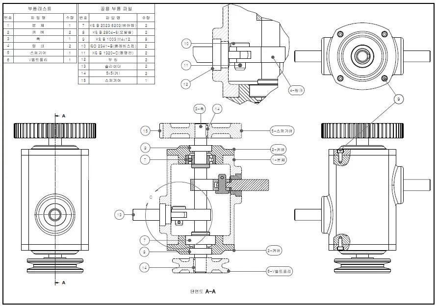
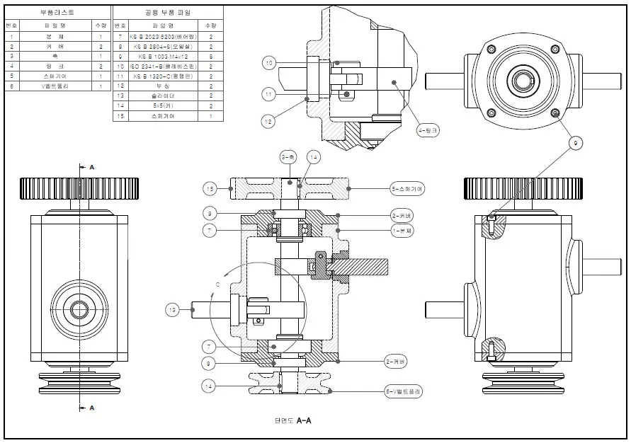
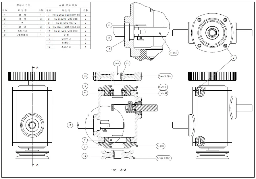
편심구동장치 부품 도면.pdf
0.39MB
규격 및 제공 부품(조립품용).zip
1.17MB
제공하는 PDF도면을 참고로, 여러분이 주력으로 공부하는 3D 캐드 프로그램을 이용해서 부품을 모델링한 후, 제공하는 부품파일을 이용해서 조립품도 생성하고, 최종적으로 도면까지 작성하는 순서로 연습하면 될 것이다.
처음 시작할 때는 몰라서, 손에 익숙하지 않아서, 새롭고 뭔가를 완성해 가는 재미가 솔솔 하기 때문에 지겨운 줄 모르고 하는데, 어느 정도 익숙해지면 조금 더 난이도 높은 도면 또는 새로운 형태의 도면을 가지고 연습하고자 하는 열망이 많을 것이다.
다양하고, 난이도 높은(?) 연습도면을 찾는다면, 돌출과 회전 블로그를 구독해 두면 좋다.^^
돌출과 회전
솔리드웍스, 오토캐드, 지스타캐드, 3D프린터 활용 강좌 및 각종 예제 도면 제공
esajin.kr
728x90
반응형